Villa a schiera in vendita

Giugliano In Campania, Via spazzilli - Giugliano - Oasi
€ 259.000
7 locali 7 locali
258 Mq 258 Mq
3 bagni 3 bagni

Villa a schiera in vendita

Giugliano In Campania, Via spazzilli - Giugliano - Oasi

Descrizione annuncio

Villa a schiera in contesto riservato – Giugliano in Campania, Via Spazzilli

In contesto tranquillo e riservato, composto da sole dieci ville a schiera, proponiamo in vendita una villa situata in Via Spazzilli, , a pochi minuti dal centro cittadino e a pochi minuti dagli svincoli dell’Asse Mediano svincoli Giugliano-Parete , posizione ideale per chi desidera vivere nella quiete senza rinunciare alla comodità dei principali collegamenti.

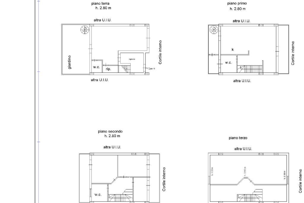
L’abitazione si sviluppa su più livelli per una superficie di circa 250 mq calpestabili e si presenta in buone condizioni, con ambienti ampi, luminosi e ben distribuiti.

Al piano terra troviamo una comoda tavernetta, utilizzabile anche come autorimessa, con la possibilità di parcheggiare comodamente due auto. Il piano è completo di bagno e deposito ed è collegato al giardino pavimentato, ideale come spazio relax o per momenti conviviali all’aperto.

Il primo piano è dedicato alla zona giorno e ospita una spaziosa e luminosa area living con salone e cucina in un unico ambiente, servita da bagno e caratterizzata da doppia esposizione. Da questo livello si accede a un balcone verandato, attualmente adibito a zona lavanderia e cucinino di servizio, soluzione ideale per evitare la diffusione degli odori di cucina negli ambienti interni. Inoltre dal balcone c’ è la possibilità di accedere al giardino tramite una scala a chioccola in ferro.

Il secondo piano, caratterizzato da pavimentazione in parquet, è destinato alla zona notte e comprende tre camere da letto spaziose e comode ed un bagno finestrato dotato di vasca idromassaggio, pensato per garantire comfort e relax.

Completa la proprietà un piano mansardato, anch’esso rifinito in parquet, ambiente versatile perfetto come studio, area hobby o zona relax.

Le spese condominiali sono contenute, pari a circa 20 euro mensili, rendendo la gestione dell’immobile particolarmente conveniente.

La villa è dotata di infissi in alluminio con doppio vetrocamera, riscaldamento autonomo a gas di città con termosifoni, addolcitore d’acqua e purificatore che consente l’erogazione del acqua sia naturale che frizzante, caldaia a condensazione. Completa la proprietà un impianto fotovoltaico che, oltre a ridurre i consumi energetici, garantisce una rendita economica.

Soluzione ideale per chi cerca indipendenza, tranquillità e ampi spazi, in un contesto riservato ma strategicamente posizionato vicino ai servizi e alle principali arterie di collegamento.

Mostra tutto

Nelle vicinanze

Trasporto pubblico Trasporto pubblico
Giugliano
Giugliano
2,0 Km
Aversa Ippodromo
Aversa Ippodromo
2,8 Km
5561
5561
2,7 Km
Ricariche auto elettriche Ricariche auto elettriche
LIDL Giugliano in Campania
2,1 Km
Brasiello Carservice | EnelX
2,1 Km
Scuole Scuole
Scuole
190 m
Scuola Secondaria Statale di I Grado "Gramsci - Impastato" (sede Impastato)
200 m
Settimo circolo didattico "Salvatore Di Giacomo"
220 m
1° Circolo Didattico di Giugliano in Campania
1,4 Km
Istituto Comprensivo "E. De Filippo"
1,5 Km
Farmacia Farmacia
Farmacia
1,5 Km
Parafarmacia Conad
1,7 Km
Farmacia Pisani
2,7 Km
Ospedali Ospedali
Clinic center Hera
530 m
San Giuliano
1,6 Km
Ospedale San Giuseppe Moscati
2,4 Km
Azienda Sanitaria Locale Napoli 2 Nord
2,5 Km
Villa dei fiori
3,0 Km
Supermercati Supermercati
Supermercati
850 m
Decò
850 m
Conad
1,7 Km
Lidl
2,1 Km
MD
2,1 Km
Negozi Negozi
Negozi
1,7 Km
Bar Bar
Chalet del Centro
1,3 Km
Ali Cafè
2,4 Km
Primo Cafè
2,6 Km
Bar Gabriele
2,6 Km
Le Maistè
2,7 Km
Ristoranti Ristoranti
i Tre Archi 2
1,1 Km
Vesy e Mac Rey
2,4 Km
Ristoranti
2,6 Km
Fratelli la Bufala Aversa
2,6 Km
Freedom
2,9 Km
Mostra tutto

Caratteristiche

Rif.:
61161337
Piano:
Su più livelli di 3
Totale piani:
3
Box:
1
Balconi:
4
Terrazzi:
1
Mostra tutto
Prezzo Prezzo
€ 259.000
Rata mutuo Rata mutuo
€ 1.209 / mese
Spese annue Spese annue
€ 220
Proponi il tuo prezzoProponi il tuo prezzo
Immobile valutato con T·Valuta

Classe Energetica

G
G
G
G
G
G
G
G
G
Anno di costruzione:
1995
Riscaldamento:
Autonomo
Tipo impianto:
A radiatori
Tipo alimentazione:
Metano

Ti interessa visionare l'immobile?

Fissa un appuntamento  Fissa un appuntamento

Richiedi informazioni

Clicca su Leggi per aprire l'informativa
* Questi campi sono obbligatori

Calcola il tuo mutuo

Semplice e senza impegno
Anticipo

( % )
Mutuo

( % )

pochi semplici passi

inserisci i tuoi dati
Questionario completato
Grazie per aver richiesto un appuntamento senza impegno con un nostro Consulente del Credito e Assicurativo.

Hai inserito correttamente tutti i dati necessari e a breve riceverai una e-mail con un link da convalidare per inviare i tuoi dati.
Affiliato
Studio Giugliano 3 Srl
Corso Campano, 569 80014 Giugliano In Campania (NA)

Il nostro staff


  • Flavia Letizia
    Coordinatrice

  • Abdalla Enmanuel Makoukji Quintero
    Collaboratore

  • Margherita Quaranta
    Responsabile
Corso Campano, 569 80014 Giugliano In Campania (NA)
Zona: Giugliano-Corso Campano
Mostra su mappa
Orari: Lunedì - Venerdì: 9.00 - 13.00 / 15.00 - 19.00 Sabato: 9.00 - 13.00
Affiliato
Studio Giugliano 3 Srl
Corso Campano, 569 80014 Giugliano In Campania (NA)

2026 Tecnocasa Franchising S.p.A. - P. IVA 08365160152 - Via Monte Bianco 60/A 20089 Rozzano (MI). Ogni agenzia ha un proprio titolare ed è autonoma. Privacy policy | Policy utilizzo | Cookie policy